Genesis is a student-led fashion show that fosters cross-disciplinary collaboration among students. The event and its organizers seek to redefine fashion by empowering artists, celebrating diversity, and advocating for a sustainable future. Genesis aims to create opportunities for every major to contribute their unique skills.
The theme for this year’s show was Fluidity, as a celebration of concept in all its forms—embracing movement, nature, gender, life, and everything beyond traditional binaries. From that theme, a story was developed centering around a storm. This story unfolded as a four-act show: the calm before the storm, the storm, and stages of renewal after the storm.
All photos below by Brallen Ramirez, 26' Photography + Imaging

Working with creative director Mobtagha Bejaoui 26' and vice president Sam Balikowa 26', I was responsible for establishing the creative vision for the set design and production and further managing its implementation.
In an 8-month creative process, I created budget sheets, mood boards, concept sketches, a show script, 3D renders, floor plans, light plans, and elevation drawings to guide the design and story of the space.
Leading up to the show, I also worked closely with motion designers Julieta Bukin ’25 and Abigail Atwell ’26, who created the visuals for the LED screen, and Luka Zukhubaia 27', who produced the music for the show.









FILMED BY RINGLING COLLEGE OF ART & DESIGN ART NETWORK
DESIGN PROCESS: FABRICATION, LIGHTING TESTS, PROTOTYPES & SET UP
We started with measuring out the space and placing markers to replicate the dimensions of the runway from the design intent. We did everything from painting, building, drilling, rigging, installing, and cleaning.



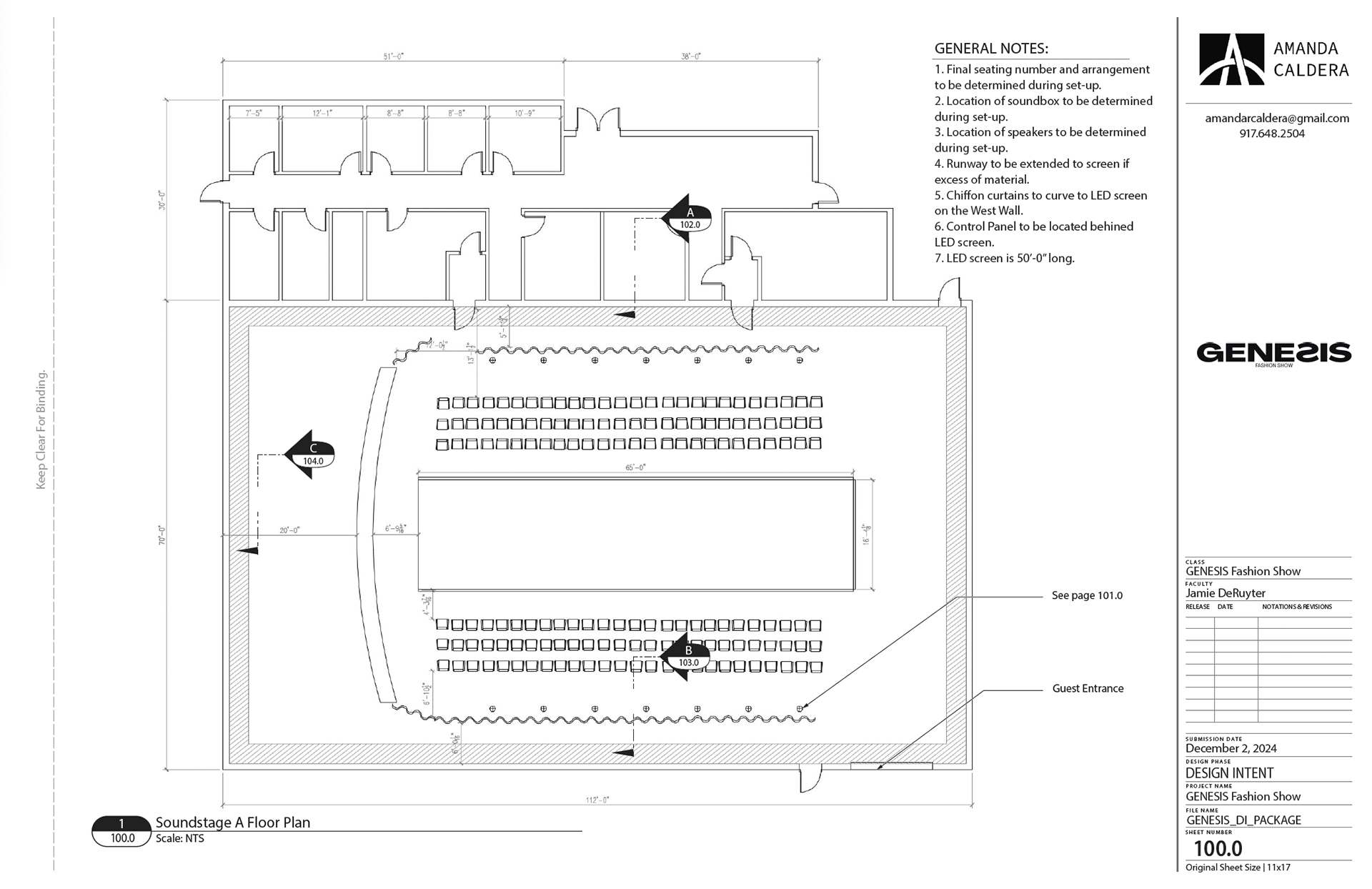
DESIGN PROCESS: DESIGN INTENT PACKAGE
Detailing out floor plans, light plans, elevations, and fabrication instructions.








DESIGN PROCESS: 3D MODEL & RENDERS
From my loose floor planning sketches, I translated these ideas into 3D renders, testing different lighting schemes, with colors, temperatures, and brightness.



DESIGN PROCESS: SKETCHING & IDEATION
Variations of layover sketches to test different materials & concepts based on budget.








COLLABORATIVE BRAINSTORMING
To create four distinct, different scenes, I guided the visuals for the LED screen and the progression of the
soundtrack, assuring cohesiveness across the story and tone of the show.
soundtrack, assuring cohesiveness across the story and tone of the show.
To set the scene for each act, I created initial mood boards that capture the transitions of the
shows lighting, colors, and visuals.
shows lighting, colors, and visuals.
After collaborating with the motion designers on a brainstorming session, I then translated these broader mood boards into abstracted visual reference that would help to tell our story.





PRODUCTION PLANNING
Before the project started, I created a scope of work and schedule to ensure the completion of all design deliverables.
To track all materials, sources of items, and costs, a budget sheet was developed and consistently updated. I also created a master time sheet to coordinate model walks, music, visuals, and lighting cues between each act.



TITLE SEQUENCE CREATED BY JACOB LEMOS, KARLA ROBLEDO & MARIELLE KAN
